The Sanctuary

Academic Individual Project: Gateway Studio

Date: 12.20.23

Instructor: Lisa Moffit

Softwares: Revit, CAD, Illustrator, Photoshop

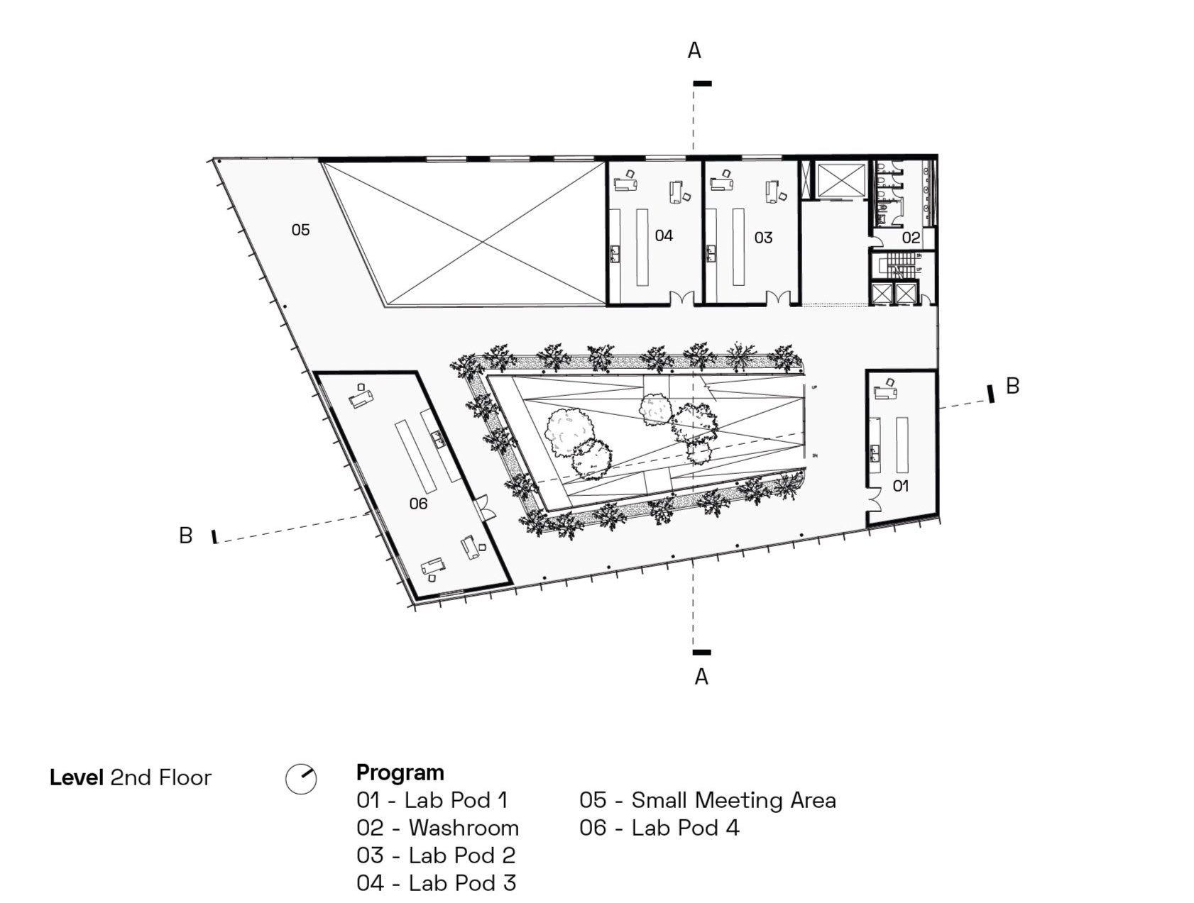
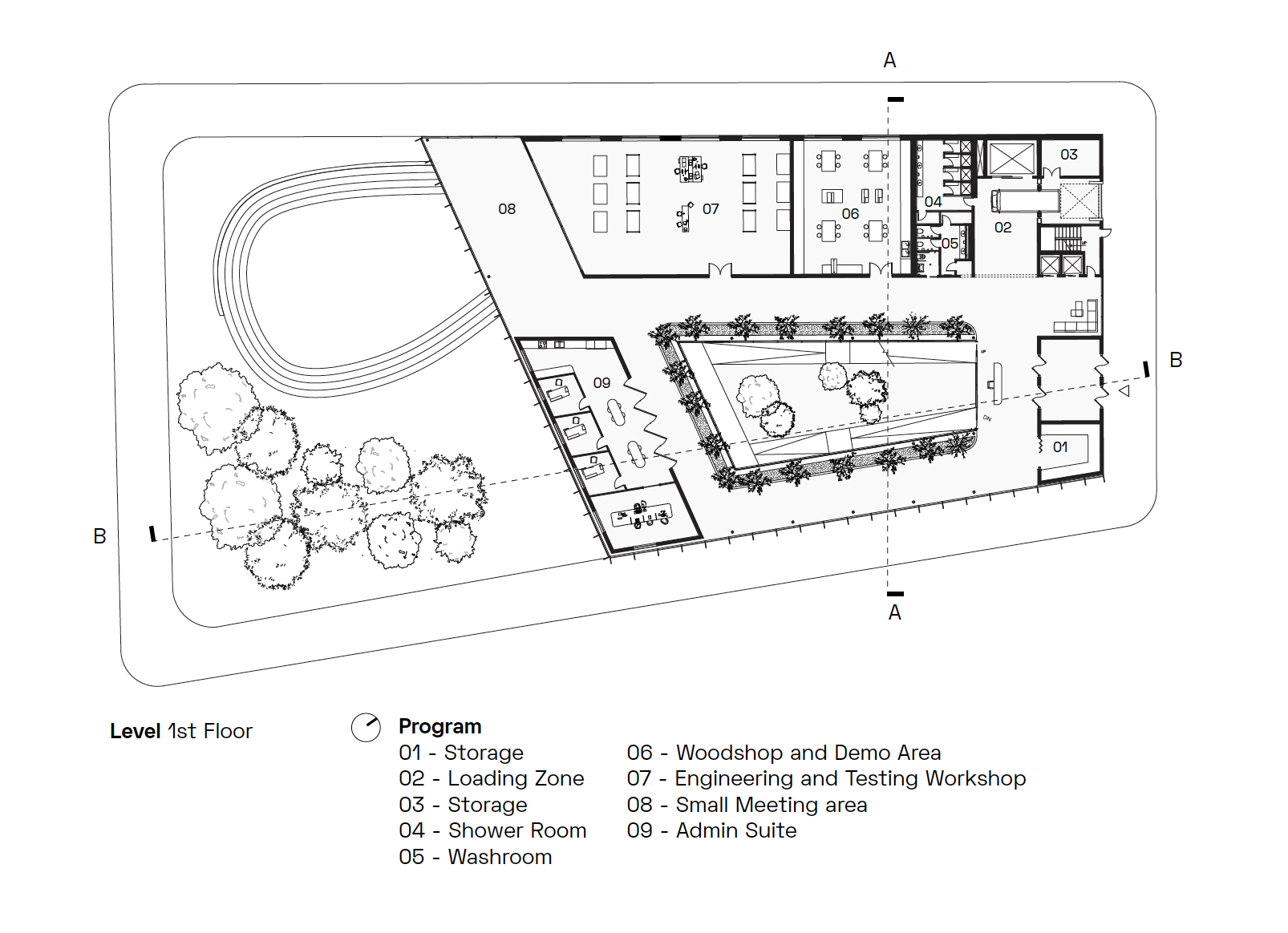
Approaching the site from Bell Street or the eastern side of Carling Street, visitors are met by the Urban Forestry Knowledge Centre, which serves as the entrance to an expansive urban forestry initiative. This building serves as an educational hub, offering insights into the realm of urban forestry and showcasing saplings strategically placed both within the building and in designated pits across the site to protect them from inclement weather.

Upon entering from Bell Street, the reception area unfolds, and from here, visitors can explore further through a network of ramps that lead both down and up by two levels. These ramps are situated within an atrium, guiding visitors towards the lower greenhouse, providing shelter for saplings that require less direct sunlight, and the upper greenhouse, tailored for those that thrive in ample sunlight.

Ottawa’s climate can be harsh, with cold winters and fluctuating weather patterns, often challenging the growth of trees. To address this, the saplings that are placed on the site are placed in pits specially designed to protect them from strong winds and temperature extremes. These pits are created with a dual purpose: to harness the thermal mass of the earth to keep the saplings warm in winter and cool in summer, while strategically sheltering them from strong winds.

The surrounding earth acts as a natural barrier, safeguarding the saplings and ensuring their continued growth. This dual protection ensures that these young trees have the ideal environment to thrive throughout the year.

Cabinet of Curiosities

Using a heat gun pointed towards the west facade, I tested how fast the stepped concrete element would heat up compared to the concrete block that is sitting inside the plexi glass enclosure. I initially expected this test to fail considering the plexi glass is not perfectly sealed to the base of the model, however it surprisingly shows that the stepped element warms slower after the intersection with the plexi glass. The base of the model also included a compartment with soil, which I was hoping would help the conrete retain it's heat, which it did. Comparing this with the previous test done as part of the casting exercice in the cabinet of curisities, the time it took for the element to cool down was almost twice slower, it took about 50 minutes, compared to the element previously tested, which took about 30minutes.