Bridge Point Haven

Academic Individual Project: Graduate Studio

Date: 07.19.23

Instructor: Paul Kariouk and Inderbir Singh Riar

Softwares: CAD, Rhino, Illustrator, Photoshop

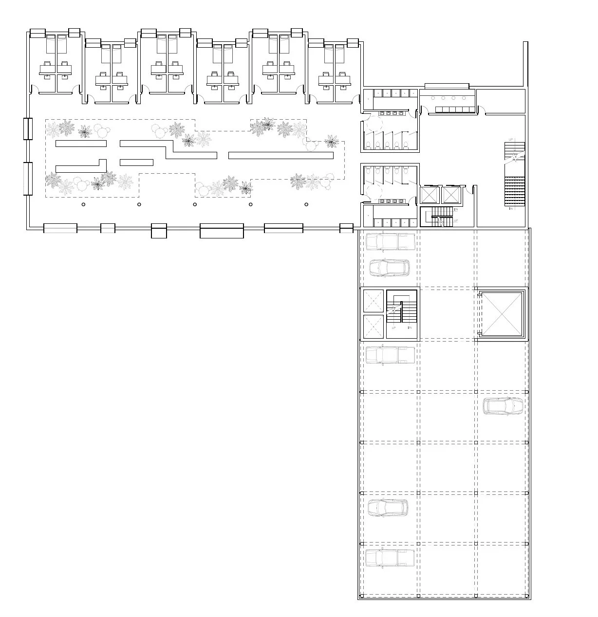
This project reimagines the site west of Place Bell along Elgin Street in Ottawa by replacing the existing parking structure with a multi-purpose facility that balances the needs of corporate tenants, the public, and Operation Come Home (OCH). The main building rises 10 floors and incorporates a structure that serves as an automated parking system for 1,200 vehicles, yet its outward presence is defined by vibrant public areas and a bold, sculptural form that shades the west-facing corporate tower behind it. At grade and throughout the lower levels, generous outdoor seating and landscaped terraces invite pedestrians to linger, blending seamlessly with Elgin’s “restaurant row” atmosphere. Above, a dramatic atrium traverses four stories, providing daylight and visual connections among the building’s various functions. Crowning the structure is the fifth-floor dining room and training kitchen, which is enclosed by glass C-channels that filter sunlight while maintaining transparency. Within this topmost level, a continuous table—elevated on a platform that mirrors the atrium below—serves as the physical and symbolic heart of OCH’s mission, where at-risk youth, staff, and visitors share meals and build community.

Designed as a sanctuary for homeless and vulnerable teenagers, the new OCH facility includes private sleeping quarters, counseling spaces, communal lounges, and job-training amenities. By positioning these areas within a highly visible yet secure environment, the project strives to offer a welcoming haven where an 18-year-old in need might feel safe and supported. Simultaneously, the building’s semi-public green spaces and pathways are conceived to serve the broader neighborhood, supplementing scarce parkland and establishing a welcoming destination for residents and visitors alike. Functioning as a brise-soleil for Place Bell’s western façade, the structure mitigates solar gain during the summer while allowing in ample daylight during Ottawa’s darker winter months, ensuring comfortable corporate offices and a renewed sense of prestige. In this delicate balance of private, public, and social-use components, the project demonstrates how thoughtful architecture can address the urgent needs of marginalized youth, satisfy commercial expectations, and enrich the city’s evolving urban fabric.

The Table