Byward Halls

Academic Individual Project: Graduate Studio

Date: 05.20.23

Instructor: Janine Debanne

Softwares: Revit, Illustrator, Photoshop

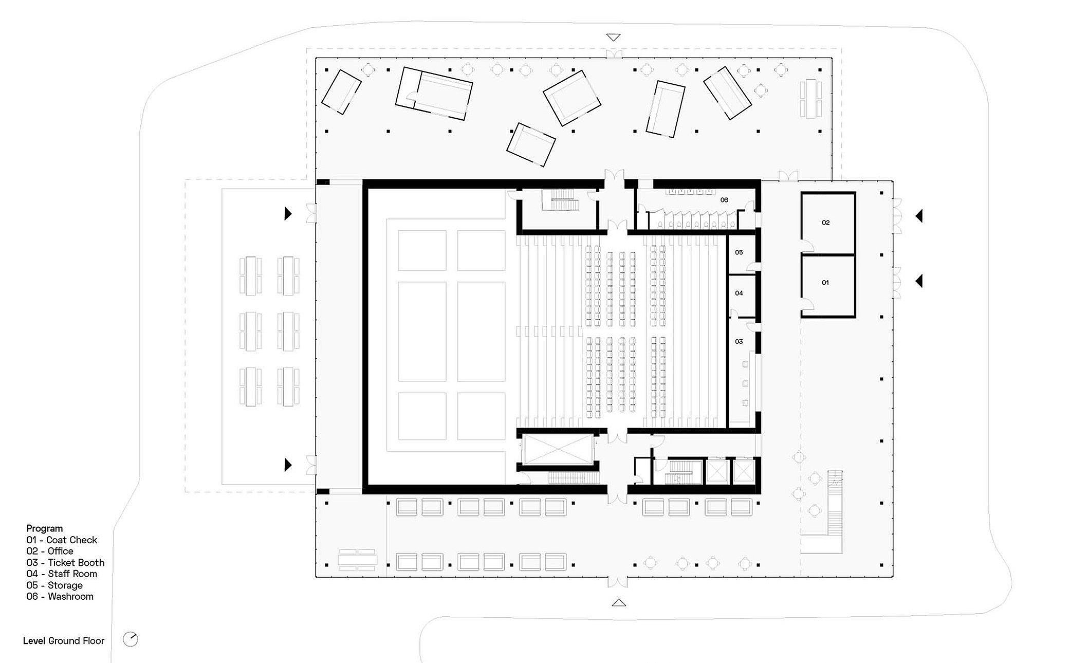
seating nooks and expansive gathering spaces that foster community. A continuous circulation path wrapping around the theater guides visitors from the quieter entrance on Clarence Street, where seating areas, a coffee shop, and direct views of the ticket booth, coat check, and gender-neutral washrooms await, up to the theater foyer on the second level, where a bar and the theater entrance are located. Offices for staff occupy the second and third floors, with additional administrative spaces, performers’ makeup and dressing rooms, and rehearsal areas on the fifth floor, atop the theater.

On York Street, the busiest side of the market, a deep overhang doubles as a pressurized enclosure during Ottawa’s harsh winters, retracting in the summer to open onto the outdoor plaza and extend the market’s footprint. By merging a vibrant marketplace with a central performing arts venue, Byward Halls creates a destination where residents and tourists can engage with Ottawa’s diverse culture, local businesses, and rich history, transforming the Byward Market into a year-round landmark that celebrates the city’s creative spirit.

Byward Halls is a proposed project in Ottawa’s historic Byward Market designed to revitalize the neighborhood by drawing both locals and tourists into a lively cultural and commercial environment. At its heart is a 600-seat theater, conceived as a monumental stone-clad volume that becomes the site’s focal point.

Two “streets” of market stalls envelop this central theater, creating a continuous loop that seamlessly connects audiences to vendors and cafés. On the ground floor, a diverse range of local merchants will offer everything from fresh produce and artisanal goods to specialty foods and baked treats, ensuring that students, families, young professionals, and seniors alike can find high-quality, sustainable products to suit their tastes. By  activating  the  space throughout  the day  and into  the evening, Byward Halls  encourages theatregoers to enjoy a meal  or snack before  and  after shows, while also providing late-night options for office workers, students, and visitors seeking  a place  to   gather. The building’s  design  revolves  around  smaller  structures  nestled  within  a  larger  overarching framework,  creating   both   intimate